Каталог товаров
Еще категории
- Главная
- Лестница входная с ступенями из Древесно-Полимерного Композита
- Лестница-крыльцо ,5 ступеней,с ступенями ДПК,без ограждений.Ширина 1 м Высота 75 см.
Лестница-крыльцо ,5 ступеней,с ступенями ДПК,без ограждений.Ширина 1 м Высота 75 см.
- Обзор
- Характеристики
- Отзывы0
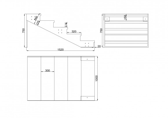
Лестница-Крыльцо имеет высоту 75см сантиметров, ширину 100см и глубину 150 см.Высота ступени-15см,глубина-30см,ширина-1м. Каркас выполнен из листового металла 4 мм отбортовкой ребра жесткости и профильной трубы 40*20,окрашен методом порошкового напыления ,цвет-матовый черный "муар".Ступени-Древесно-полимерный композит,цвет "венге" .Порошковое напыление обеспечивает надежную защиту от коррозии и повреждений.
| Материал каркаса | Сталь3 с порошковым напылением |
| Ширина марша | 1000 |
| Высота | 750 |
| Кол-во ступеней прямых | 5 |
| Материал ступеней | Древесно-полимерный композит |
| Ограждение лестницы | нет |
| Площадка | нет |













