- Главная
- Лестница входная с ступенями из Древесно-Полимерного Композита
- Лестница-крыльцо 5 ступеней с площадкой ,без ДПК,ограждения слева.
Лестница-крыльцо 5 ступеней с площадкой ,без ДПК,ограждения слева.
- Обзор
- Характеристики
- Отзывы0
Лестница-крыльцо от Мастермарш - это идеальный выбор для тех, кто ищет надежную и стильную лестницу для своего дома. Этот продукт сочетает в себе функциональность и эстетику, что делает его идеальным выбором для любого интерьера.
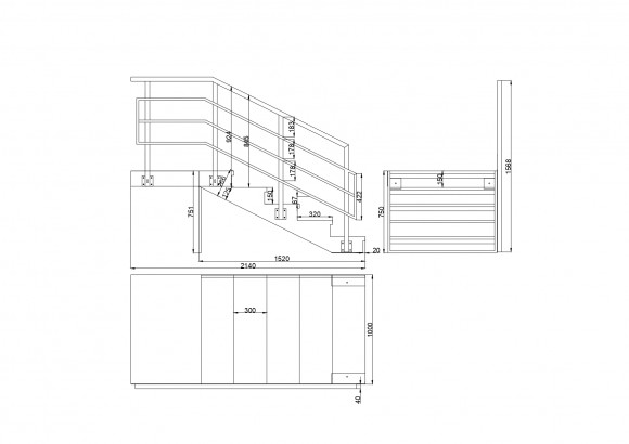
Лестница-Крыльцо имеет высоту 75см сантиметров, ширину 100см и глубину 220см.Размер площадки-1м*1м.Высота ступени-15см,глубина-30см,ширина-1м. Ограждения слева по лестнице и площадке. Каркас выполнен из металла . Порошковое напыление обеспечивает надежную защиту от коррозии и повреждений.
Ограждение с одной стороны обеспечивает безопасность при подъеме и спуске.
Преимущества лестницы-Крыльца :
- Надежность и долговечность: каркас лестницы выполнен из листовой стали 4мм с отбортовкой ребра жесткости и профильных труб 40*20, который гарантирует долгий срок службы.
- Эстетичность: лестница-Крыльцо выглядит стильно и современно благодаря сочетанию черного "муара" .
- Экологичность: материал лестницы-Крыльца не содержит вредных веществ и соответствует экологическим стандартам.
В целом, лестница-Крыльцо от Мастермарш является идеальным выбором для тех, кто ценит качество, стиль и функциональность. Она поможет создать уютную атмосферу в вашем доме и обеспечит комфорт при использовании.
| Кол-во ступеней прямых | 5 |
| Материал ступеней | нет |
| Ограждение лестницы | с одной стороны "стандарт" |
| Площадка | да |
| Ограждение площадки | с одной стороны "стандарт" |










