- Главная
- Лестница входная с ступенями из Древесно-Полимерного Композита
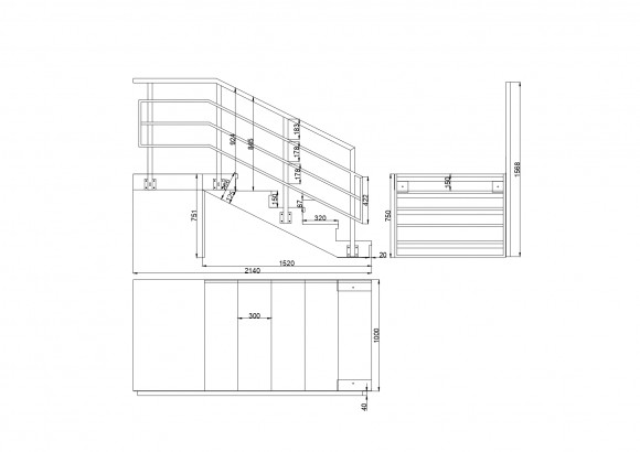
- Лестница-крыльцо с площадкой,5 ступеней,ограждение с одной стороны.Ширина 1 м.Высота 75 см.
Лестница-крыльцо с площадкой,5 ступеней,ограждение с одной стороны.Ширина 1 м.Высота 75 см.
- Обзор
- Характеристики
- Отзывы0
Лестница-крыльцо имеет высоту 75см сантиметров, ширину 100см и глубину 220см.Размер площадки-1м*1м.Высота ступени-15см,глубина-30см,ширина-1м. Ограждения слева по лестнице. Каркас выполнен из металла, а ступеньки из ДПК. Порошковое напыление обеспечивает надежную защиту от коррозии и повреждений.
Ступеньки имеют цвет "венге", что придает лестнице-крыльцу элегантный вид. Ограждение с одной стороны обеспечивает безопасность при подъеме и спуске.
Преимущества лестницы-крыльца с ступенями ДПК:
- Надежность и долговечность: каркас лестницы выполнен из листовой стали 4мм с отбортовкой ребра жесткости и профильных труб 40*20, который гарантирует долгий срок службы.
- Эстетичность: лестница-Крыльцо выглядит стильно и современно благодаря сочетанию черного "муара" и цвета "венге" на ступеньках.
- Экологичность: материал лестницы-Крыльца не содержит вредных веществ и соответствует экологическим стандартам.
В целом, лестница-Крыльцо от Мастермарш является идеальным выбором для тех, кто ценит качество, стиль и функциональность. Она поможет создать уютную атмосферу в вашем доме и обеспечит комфорт при использовании
| Глубина площадки,балюстрады,балкона | 1 м |
| Материал каркаса | Сталь3 с порошковым напылением |
| Ширина марша | 1000 |
| Высота | 750 |
| Кол-во ступеней прямых | 5 |
| Материал ступеней | Древесно-полимерный композит |
| Ограждение лестницы | с одной стороны "стандарт" |
| Площадка | да |
| Ограждение площадки | с одной стороны "стандарт" |











