- Главная
- Лестница входная с ступенями из Древесно-Полимерного Композита
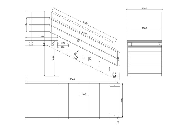
- Лестница входная с ступенями ДПК , перила с двух сторон . Ширина 1,3 м. Высота 1,2 м. 8 ступеней с площадкой.
Лестница входная с ступенями ДПК , перила с двух сторон . Ширина 1,3 м. Высота 1,2 м. 8 ступеней с площадкой.
- Обзор
- Характеристики
- Отзывы0
Лестница-крыльцо с ступенями ДПК от Мастермарш - это идеальный выбор для тех, кто ищет надежную и стильную лестницу для своего дома. Этот продукт сочетает в себе функциональность и эстетику, что делает его идеальным выбором для любого интерьера.
Лестница входная,8 ступеней,включая площадку,с ступенями из Древесно-Полимерного композита (ДПК) ,высота 1,2 метра (возможно от 1,2 м до 1,6 м,при высоте ступени от 15 до 20 см).Размер площадки 1,3 *0,96 м. Ширина марша 1,3 метра (возможна до 2-х и более метров) ,глубина 3,06 метра ( возможна от 2,46 м до 3,06 м,при глубине ступени от 20 до 30 см.) . Каркас выполнен из листа 4 мм,с отбортовкой ребра жесткости 50 мм и профильной трубы 40*20 ,покраска каркаса методом порошкового напыления,выбор цвета по РАЛ (по умолчанию,цвет черный матовый).ДПК 320*1300*28 мм-8 шт ,доска на площадке 156 *1300* 28 -4 шт,цвет "венге"(возможен серый и черный).
Перила с двух сторон по лестнице и площадке .
ИЗГОТОВИМ ПО ВАШИМ РАЗМЕРАМ
Ступеньки имеют цвет "венге", что придает лестнице-крыльцу элегантный вид.
Преимущества лестницы-Крыльца с Ступенями ДПК:
- Надежность и долговечность: каркас лестницы выполнен из листовой стали 4мм с отбортовкой ребра жесткости и профильных труб 40*20, который гарантирует долгий срок службы.
- Эстетичность: лестница-Крыльцо выглядит стильно и современно благодаря сочетанию черного "муара" и цвета "венге" на ступеньках.
- Экологичность: материал лестницы-Крыльца не содержит вредных веществ и соответствует экологическим стандартам.
-Порошковое напыление обеспечивает надежную защиту от коррозии и повреждений.
-Ступеньки имеют цвет "венге", что придает лестнице-крыльцу элегантный вид.
В целом, лестница-Крыльцо от Мастермарш является идеальным выбором для тех, кто ценит качество, стиль и функциональность. Она поможет создать уютную атмосферу в вашем доме и обеспечит комфорт при использовании.
| Глубина площадки,балюстрады,балкона | 1 м |
| Материал каркаса | Сталь3 с порошковым напылением |
| Ширина марша | 1300 |
| Высота | 1200 |
| Кол-во ступеней прямых | 8 |
| Материал ступеней | Древесно-полимерный композит |
| Ограждение лестницы | с двух сторон "стандарт" |
| Площадка | да |
| Ограждение площадки | с двух сторон "стандарт" |







